Предостережения при работе с электрическими цепями
Некоторые кабели системы SRS имеют желтый цвет наружной изоляции, разъемы системы также имеют желтую окраску.Соблюдайте инструкции.
Жгуты системы SRS не подлежат ремонту, удлинению и изменению конструкции.При обнаружении обрыва или повреждения жгутов SRS необходимо заменить жгут целиком.
При прокладке жгутов необходимо следить, чтобы они не перетирались и не пережимались посторонними деталями.
Очистите контактные площадки для соединения элементов системы SRS с «массой» от загрязнений, надежно затяните болты крепления проводов. Нарушенный контакт с «массой» может стать причиной «пропадающих» неисправностей, которые трудно выявляются при диагностике.
Датчики столкновения
Наиболее важными частями успеха системы подушек безопасности являются датчики столкновения. Эти небольшие части электроники предназначены для того, чтобы сообщить, когда автомобиль повреждается в результате несчастного случая. Они реагируют на несколько разных наборов стимулов, включая внезапную остановку и повышенное давление (когда куски автомобиля перемещаются из-за силы столкновения) и т. д.
Сенсоры подушек безопасности, расположенные в передней части кабины, контролируются различными типами датчиков, которые измеряют:
- скорость колеса
- состояние пассажира
- давление и удар тормозов
- и другие индикаторы состояния авто
Датчики передают сигналы в блок управления подушкой безопасности, который анализирует данные и может управлять функциями безопасности, такими как:
- блокировка ремня безопасности
- автоматические дверные замки
- развёртывание подушки безопасности.
В автомобиле используется два типа датчиков — электрические и механические.
Некоторые используют электромеханический механизм «шарик и трубка», который в основном состоит из небольшой трубки, содержащей выключатель цепи и шар, удерживаемые вместе небольшим магнитом. Когда происходит столкновение, шарик выталкивается из магнита и катится вперед в трубке, нажимая выключатель, который замыкает электрическую цепь.
Другие электрические конструкции в принципе аналогичны, используя металлический ролик или подпружиненные грузы вместо шара, или в новых автомобилях — акселерометр для отключения датчика.
Механические датчики работают независимо от электрической системы и реагируют аналогично электрическим датчикам, с конструкцией, которая приводит в действие ударник, запускающий небольшой взрыв после аварии.
Поскольку механический датчик не требует источника питания, его нельзя отключить, как электрический датчик, когда аккумулятор отсоединен.
Успех системы подушек безопасности зависит от того, что датчики столкновения работают, не только точно, но и очень быстро, поэтому это самая дорогая и технологически продвинутая часть системы подушек безопасности.
Возникающие проблемы
Передние подушки безопасности предназначены для защиты людей от взрослых. Поскольку дети меньше, они рискуют получить травму от её срабатывания. Поэтому они не должны занимать переднее сиденье, если в машине есть Airbag для пассажира.
В авто не должны быть установлены принадлежности, которые могут ограничивать развёртывание Airbag-а или стать ракетой во время его срабатывания.
Системы подушек безопасности обычно имеют контрольную лампу с индикатором. Если лампа не погаснет сразу после запуска или включается во время вождения, сверьтесь с руководством по эксплуатации и проверьтесь на СТО. Система обнаружила ошибку.
Если вы этого не сделаете, подушки могут неожиданно сработать во время ремонта, особенно во время электромонтажных работ. Это может привести к серьезным травмам, поэтому оставьте ремонт квалифицированным специалистам.
Подушки безопасности разворачиваются с взрывной силой и далеки от больших пушистых подушек, которые могут себе представить некоторые люди. Не редко остаются небольшие травмы и ссадины от контакта с подушкой.
Несколько изготовителей транспортных средств определяют срок службы компонентов подушек безопасности. Обычно загорается сигнальная лампа подушки безопасности, и компоненты должны быть заменены, прежде чем она погаснет.
Выключение подушек безопасности
Подушки безопасности разработаны таким образом, что их не нужно включать, но иногда их можно отключить. Это связано с соображениями безопасности, поскольку есть случаи, когда они могут нанести больше вреда, чем пользы.
Когда автомобиль включает в себя возможность отключения подушек безопасности пассажира, механизм деактивации обычно располагается на пассажирской стороне приборной панели.
Процедура снятия Airbag-а со стороны водителя, как правило, более сложная, и после неправильной процедуры может вызвать срабатывание подушки безопасности. Если вы обеспокоены тем, что защитная подушка с водительской стороны может нанести вам вред, для её отключения следует обратиться к специалисту.
Как они работают?
- Каждая отдельная подушка безопасности сдувается и упаковывается в отсек, расположенный в приборной панели, рулевом колесе, сиденье или в другом месте.
- Передний Airbag включает в себя большой нейлоновый мешок, который накачивается и быстро сдувается в случае серьезного лобового столкновения.
- Срабатывание подушки безопасности контролируется датчиками, которые обнаруживают возникновение и серьезность аварии. Когда контроллер определяет, что Airbag должен быть развёрнут, система запускает блок инфлятора, он в свою очередь сжигает химикаты, которые производят много инертного газа для раздувания мешка.
- Когда мешок надувается, он разрывает открытые крышки на приборной панели, взлетая перед пассажиром. В то же время голова и верхняя часть пассажира движутся со значительным усилием в сторону надутого мешка. Когда голова пассажира соприкасается с подушкой безопасности, она начинает сдуваться через вентиляционные отверстия в основании. Это смягчает движение головы вперед. Весь процесс происходит в мгновенье ока, примерно за 100 миллисекунд.
- В процессе развёртывания будет много дыма, пыли и шума, и пассажир может не знать, что подушка сработала. Это нормально.
Правила безопасности при работе с деталями рулевого управления
Расположение соединительных проводов
- Неправильная установка соединительных проводов может привести к разрыву цепи системы SRS и цепи управления звуковым сигналом. Установите поворотный контактор в правильном положении (отцентрируйте) после выполнения следующих работ:
- Установка рулевого колеса.
- Установка поворотного контактора.
- Установка рулевой колонки.
- Прочие работы, связанные со снятием-установкой или регулировкой деталей, расположенных в рулевой колонке.
- Не разбирайте поворотный контактор.
- Не смазывайте поворотный контактор пластичной смазкой.
- При любых повреждениях поворотного контактора его следует заменить на новый. Например, если он не вращается свободно, замените контактор.
3. Подушки безопасности
4-дверные модели
- Передний правый датчик удара.
- Передний левый датчик удара.
- Индикатор пассивной безопасности SRS.
- Индикатор боковой подушки безопасности.
- Контактное кольцо.
- Водительская подушка безопасности.
- Подушка безопасности переднего пассажира.
- Блок SRS.
- Датчики OPDS спинки сиденья.
- Боковая подушка безопасности переднего пассажира.
- Правый преднатяжитель ремня безопасности.
- Датчик удара со стороны переднего пассажира.
- Блок OPDS.
- Боковая подушка безопасности водителя.
- Левый преднатяжитель ремня безопасности.
- Датчик удара со стороны водителя.
- Сервисный разъем диагностики.
- Разъем канала данных.
- Разъем сигнала для стирания памяти.
5-дверные модели
- Боковая подушка безопасности переднего пассажира.
- Датчики OPDS спинки сиденья.
- Индикатор боковой подушки безопасности.
- Индикатор пассивной безопасности SRS.
- Передний правый датчик удара.
- Передний левый датчик удара.
- Подушка безопасности переднего пассажира.
- Контактное кольцо.
- Разъем сигнала для стирания памяти.
- Водительская подушка безопасности.
- Разъем канала данных.
- Сервисный разъем диагностики.
- Блок SRS.
- Боковая подушка безопасности водителя.
- Датчик удара со стороны водителя.
- Правый преднатяжитель ремня безопасности.
- Блок OPDS.
- Датчик удара со стороны переднего пассажира.
- Левый преднатяжитель ремня безопасности.
Снятие
1. Отсоединить отрицательную клемму аккумуляторной батареи и подождать не менее трех минут перед началом выполнения работ.
2. Снять панель доступа (А) с рулевого колеса, затем разъединить разъем контактного кольца (В) и разъем водительской подушки безопасности (С).
4-дверные модели
5-дверные модели
3. Отвернуть два болта Torx (А) используя специальный ключ Torx T30. Снять водительскую подушку безопасности (В).
4-дверные модели
5-дверные модели
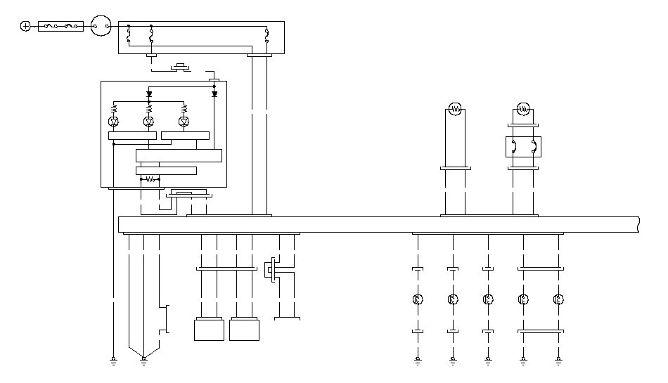
Электрическая схема системы SRS (подушек безопасности)
Автомобиль с ЛРК
BLU*YEL*LT BLU*ORN*PUR*BLU*YEL*BRN*LT BLU*344P4P131RED/BLUBLKG652BLK122RED/BLUBLKG652BLK16BLKG6522PBLKRED/BLU2P2115BLKG6023PBLKRED/BLU3P21123PRED/BLUBLK3PG602BLK4P4P33784224A910БЛОК SRSB114PГАЗОГЕНЕРАТОР ПОДУШКИ БЕЗОПАСНОСТИ ПЕРЕДНЕГО ПАССАЖИРАГАЗОГЕНЕРАТОРПОДУШКИ БЕЗОПАСНОСТИ ВОДИТЕЛЯСОЕДИНИТЕЛЬНЫЕ ПРОВОДАЖГУТ ПРОВОДОВ КОМБИНИРОВАННОГО ВЫКЛЮЧАТЕЛЯВцепях системы SRS, помеченных звездочкой *, могут использоваться СИНИЕ или КОРИЧНЕВЫЕ провода.ЖГУТПРОВОДОВПОЛАЖГУТПРОВОДОВПОЛАДАТЧИК ЗАМКА ЛЕВОГО РЕМНЯ БЕЗОПАСНОСТИДАТЧИК ЗАМКА ЗАДНЕГО ПРАВОГО РЕМНЯ БЕЗОПАСНОСТИДАТЧИК ЗАМКА ЗАДНЕГО ПРАВОГО РЕМНЯ БЕЗОПАСНОСТИДАТЧИК ЗАМКА ЗАДНЕГО ЛЕВОГО РЕМНЯ БЕЗОПАСНОСТИДАТЧИК ЗАМКА ЗАДНЕГО ЦЕНТРАЛЬНОГО РЕМНЯ БЕЗОПАСНОСТИRED*GRN*BRN*LT BLU*BRN*LT BLU*BLU*BRN*GRN*RED*BLK*BLK*LT GRN*RED*WHT*RED*WHT*ОСНОВНАЯ ЭЛЕКТРИЧЕСКАЯ ЦЕПЬVBVA15МОДУЛЬ УПРАВЛЕНИЯ ПРИБОРАМИ (ТАХОМЕТР)БЛОК SRS№ 9(7,5 A)(7,5 A)№ 10№ 11(10 A)941LT BLUJАККУМУЛЯТОРНАЯ БАТАРЕЯBATIG1ЗАМОК ЗАЖИГАНИЯБЛОК РЕЛЕ/ПРЕДОХРАНИТЕЛЕЙ ПОД ПАНЕЛЬЮ ПРИБОРОВG503BLK2P2P4P1212432127231628BRNA17ЭЛЕКТРИЧЕСКАЯ ЦЕПЬЭЛЕКТРИЧЕСКАЯ ЦЕПЬПРИЕМОПЕРЕДАТЧИК F-CAN 16119WHTREDAA225G40412BLK*624BRNLT BLUA11121718БЛОК РЕЛЕ/ПРЕДОХРАНИТЕЛЕЙ МОТОРНОГООТСЕКАРАЗЪЕМ ПЕРЕДАЧИ ДАННЫХ (16Р)РАЗЪЕМ (2Р) ДЛЯ СИГНАЛА ОЧИСТКИ ПАМЯТИ (MES)СОЕДИНИТЕЛЬНЫЙРАЗЪЕМСОЕДИНИТЕЛЬНЫЙРАЗЪЕМСИГНАЛИЗАТОР НАПОМИНАНИЯ О ПРИСТЕГИВАНИИ РЕМНЯ БЕЗОПАСНОСТИИНДИКАТОР РАЗРЫВА ЦЕПИ БОКОВОЙ ПОДУШКИ БЕЗОПАСНОСТИИНДИКАТОР СИСТЕМЫ SRSЛЕВЫЙ ПЕРЕДНИЙ ДАТЧИК УДАРАПРАВЫЙ ПЕРЕДНИЙ ДАТЧИК УДАРАЖГУТ ПРОВОДОВ МОТОРНОГО ОТСЕКАСОЕДИНИТЕЛЬНЫЙРАЗЪЕМСОЕДИНИТЕЛЬНЫЙРАЗЪЕМЖГУТПРОВОДОВ ПАНЕЛИ УПРАВЛЕНИЯЖГУТПРОВОДОВ ПАНЕЛИ УПРАВЛЕНИЯЖГУТ ПРОВОДОВ КОМБИНИРОВАННОГО ВЫКЛЮЧАТЕЛЯЖГУТ ПРОВОДОВ КОМБИНИРОВАННОГО ВЫКЛЮЧАТЕЛЯЖГУТ ПРОВОДОВ КОМБИНИРОВАННОГО ВЫКЛЮЧАТЕЛЯЖГУТ ПРОВОДОВ КОМБИНИРОВАННОГО ВЫКЛЮЧАТЕЛЯ16PLT BLU
LT GRN*YEL*LT GRN*GRY*WHT*GRN*BLU*RED*RED*GRY*LT GRN*BRN*2P2P56122019171821122P2P232728B41214P2P212324BБЛОК SRSГАЗОГЕНЕРАТОР ПРАВОЙ БОКОВОЙ ШТОРКИ БЕЗОПАСНОСТИПРАВЫЙ БОКОВОЙ ДАТЧИК УДАРА (ВТОРОЙ)ДАТЧИК (ПЕРВЫЙ) БОКОВОГО УДАРА С ПРАВОЙ СТОРОНЫГАЗОГЕНЕРАТОР ПРАВОЙ БОКОВОЙ ПОДУШКИ БЕЗОПАСНОСТИГАЗОГЕНЕРАТОР ЛЕВОЙ БОКОВОЙ ПОДУШКИ БЕЗОПАСНОСТИДАТЧИК ПОСАДКИ НА СИДЕНЬЕ С ПРАВОЙ СТОРОНЫЖГУТПРОВОДОВПОЛАЖГУТПРОВОДОВПОЛАВцепях системы SRS, помеченных звездочкой *, могут использоваться СИНИЕ или КОРИЧНЕВЫЕ провода.GRN*RED*LT BLU*BRN*GRN*WHT*ORN*YEL*BRN*BLU*PNK*GRY*GRN*ORN*2P2P2P4P4P2112879102221122P4P2141B43122332B262532БЛОК SRSДАТЧИК (ПЕРВЫЙ) БОКОВОГО УДАРА С ЛЕВОЙ СТОРОНЫНАТЯЖИТЕЛЬ ЛЕВОГО БОКОВОГО РЕМНЯ БЕЗОПАСНОСТИЛЕВЫЙ БОКОВОЙ ДАТЧИК УДАРА (ВТОРОЙ)ГАЗОГЕНЕРАТОР ЛЕВОЙ БОКОВОЙ ШТОРКИ БЕЗОПАСНОСТИЛЕВЫЙ БОКОВОЙ НАТЯЖИТЕЛЬ ВНЕШНЕЙ ПЕТЛИ НАТЯЖИТЕЛЬ ПРАВОГО БОКОВОГО РЕМНЯ БЕЗОПАСНОСТИПРАВЫЙ БОКОВОЙ НАТЯЖИТЕЛЬ ВНЕШНЕЙ ПЕТЛИ ЖГУТПРОВОДОВПОЛАЖГУТПРОВОДОВПОЛА
Скачивание книги
После успешного прохождения платежа (любым способом) и возврата в магазин KrutilVertel с сайта платежной системы Вы попадаете на страницу успешной оплаты:
Купленная Вами книга будет находиться в Вашем личном кабинете, откуда ее всегда можно будет скачать.
Обратите внимание, что после совершения оплаты, Вам необходимо вернуться обратно с сайта платежной системы на сайт KrutilVertel. В случае, если по каким либо причинам Вы не вернулись обратно на сайт и закрыли вкладку платежной системы с сообщением про успешное прохождение платежа, сообщите нам об этом — мы вышлем Вам письмо в котором будет указан доступ для скачивания книги
В случае, если по каким либо причинам Вы не вернулись обратно на сайт и закрыли вкладку платежной системы с сообщением про успешное прохождение платежа, сообщите нам об этом — мы вышлем Вам письмо в котором будет указан доступ для скачивания книги.
Горящая лампочка-индикатор «Airbag SRS», «Airbag», или «SRS»: причины и способы устранения
Итак, по каким причинам на панели приборов может появляться индикатор Airbag или SRS:
Нарушена целостность ПБ — один из самых неприятных вариантов для автовладельца. Из-за нарушения целостности управляющий блок может больше не получать соответствующие импульсы контроллеров, ремней и прочих компонентов системы безопасности. Есть вероятность, сами ремни безопасности оснащены датчиком, определяющим пристегнутость ремешков, соответственно, если водитель или пассажир не пристегнулся, на приборке будет гореть индикатор. Это необходимо потому, что эксплуатация ПБ актуальна и наиболее оправдана только в том случае, когда водитель передвигается в пристегнутом состоянии. В том случае, если произойдет авария, ПБ вылетят со скоростью около 200 километров в час, соответственно, если водитель не будет пристегнутым, это будет соответствовать удару о бетонную стену на скорости 25 км/час. С учетом этого фактора большинство производителей транспортных средств запрограммировали ПБ так, чтобы если произойдет авария, она просто не сработает. А это, как можно догадаться, говорит о том, что ни о какой безопасности не может быть и речь. Если вы попытаетесь обмануть систему путем протягивания ремешков за спинками кресел или используя всевозможные эмуляторы, которые позволят ее обмануть, это зря. Ведь так вы обманываете только себя, если произойдет серьезная авария, то ни водитель, ни пассажиры не смогут выжить из-за этого.
Еще одна проблема — отсутствие контакта или очень плохое соединение элементов в электроцепи питания ПБ. Есть вероятность, что заключается в плохом подключении разъемов. Необходимо проверить качество соединения, а также все контакты.
Также световой индикатор на приборке может появляться из-за выхода из строя либо повреждения контроллеров удара. Они также могут быть плохо подключены. Рекомендуем проверить качество соединения элементов, а также разъемы. Но если все контакты рабочие, а проблема указывает на неисправность датчиков удара, то эти устройства подлежат скорой замене, иначе смысла от того, что машина оснащена ПБ, просто не будет.
Одной из самых распространенных причин является нарушение контакта в дверях. Если производятся какие-либо ремонтные работы в дверях или они меняются, при этом отключаются разъемы, то при последующем их соединении контакты надо проверить. Бывает такое, что после переподключения индикатор все равно продолжает гореть, это свидетельствует о необходимости обнуления памяти блока управления.
Еще одна причина — попадание влаги. Если на контакты электрических элементов или на замок ремешка попала влага, это может привести к плохому контакту или замыканию. Если вы столкнулись с такой проблемой, то места попадания влаги необходимо высушить.
Выход из строя или некорректная работа блока управления. Возможно, на нем также отошли контакты. Но если проблема кроется в самой плате блока, то скорей всего, его придется менять.
Предохранительные устройства. Если эти элементы выходят из строя, то на приборке также загорится соответствующий значок
Но как показывает практика, предохранителям автовладельцы уделяют внимание в последнюю очередь.
Еще одна причина, по которой может возникнуть такая проблема, — это замена сидений или контрольного щитка. При замене могла быть нарушена целостность проводки, в частности, речь идет о местах соединений.
Кроме того, неисправность может возникнуть в результате нарушений при замене руля
Если в ходе замены вы повредили контакты, то индикатор будет гореть всегда.
Если ПБ сработали при столкновении, а индикатор продолжает гореть после их восстановления, это говорит о том, что информация об этом осталась в памяти блока управления. Решить проблему позволит удаление ошибки.
Ресурс эксплуатации ПБ завершен. В среднем срок службы подушек составляет около 8-10 лет, по прошествии этого срока производители авто обычно не гарантируют работоспособность ПБ.
Пониженное напряжение в бортовой сети авто. В первую очередь, нужно , а также генераторное устройство.
Загрузка …
Общие правила безопасности
Перед началом каких-либо работ с системой подушек безопасности прочтите приведенные ниже правила безопасности. Соблюдайте приведенные в данном Руководстве правила безопасности для исключения возможности случайного срабатывания системы и получения травм и материальных потерь.
- При проведении любых ремонтных работ, за исключением проверки электрических цепей, поверните ключ в замке зажигания в положение «OFF» и снять провод «массы» с аккумулятора. После этого подождите не менее 3 минут перед началом работ.ПРИМЕЧАНИЕ: При повороте ключа замка зажигания в положение OFF или снятии провода «массы» с аккумулятора содержание памяти системы SRS не теряется.
- Используйте только те запасные части, которые рекомендованы фирмой-изготовителем автомобиля. Не используйте бывшие в употреблении элементы системы SRS в качестве запасных частей. При ремонте системы SRS используйте только новые запасные части.
- Перед заменой внимательно осмотрите запасные части, подлежащие установке.Не устанавливайте на автомобиль запасные части, на которых видны следы небрежного обращения: трещины, вмятины или следы деформации.
- При замене любых элементов системы SRS (включая отсоединение разъемов) всегда предварительно отсоединяйте разъем SRS.
- Используйте только цифровой тестер для проверки системы. Если это не тестер производства компании Honda, то предварительно убедитесь, что ток нагрузки не превышает 10 мА (0,01 А) при установленном наименьшем пределе измерений при использовании тестера в качестве омметра. Тестер с большим значением силы тока нагрузки может вызвать случайное срабатывание элементов системы и вызвать травму.
- Не ставьте посторонние предметы на подушку безопасности переднего пассажира.
- Установленная на заводе автомагнитола имеет встроенную схему с кодировкой для защиты от краж. Перед снятием провода «массы»с аккумулятора узнайте код автомагнитолы и запишите частоты настройки радиостанций.
- Перед возвращением автомобиля клиенту, введите охранный код радиоприемника, установите предварительно запрограммированные станции и установите правильное время на часах.
Общие правила безопасности
Перед началом каких-либо работ с системой подушек безопасности прочтите приведенные ниже правила безопасности. Соблюдайте приведенные в данном Руководстве правила безопасности для исключения возможности случайного срабатывания системы и получения травм и материальных потерь.
- Проводя любые процедуры, кроме проверки электрических цепей, установите ключ зажигания в положение OFF, заземлите линию SCS с помощью системы HDS, чтобы дезактивизировать модуль РСМ, отсоедините отрицательный провод от аккумулятора и подождите не менее 3 минут перед тем как начать работу.ПРИМЕЧАНИЕ: При повороте ключа замка зажигания в положение OFF или снятии провода «массы» с аккумулятора содержание памяти системы SRS не теряется.
- Используйте только те запасные части, которые рекомендованы фирмой-изготовителем автомобиля. Не используйте бывшие в употреблении элементы системы SRS в качестве запасных частей. При ремонте системы SRS используйте только новые запасные части.
- Перед заменой внимательно осмотрите запасные части, подлежащие установке.Не устанавливайте на автомобиль запасные части, на которых видны следы небрежного обращения: трещины, вмятины или следы деформации.
- При замене любых элементов системы SRS (включая отсоединение разъемов) всегда предварительно отсоединяйте разъем SRS.
- Используйте только цифровой тестер для проверки системы. Если это не тестер производства компании Honda, то предварительно убедитесь, что ток нагрузки не превышает 10 мА (0,01 А) при установленном наименьшем пределе измерений при использовании тестера в качестве омметра. Тестер с большим значением силы тока нагрузки может вызвать случайное срабатывание элементов системы и вызвать травму.
- Не ставьте посторонние предметы на подушку безопасности переднего пассажира.
- Оригинальные аудио- и навигационная системы имеют кодовую защиту от кражи. Перед отсоединением отрицательного провода от аккумулятора убедитесь, что у Вас есть настройки радиоприемника клиента.
- Перед возвращением автомобиля клиенту, введите охранный код радиоприемника или системы навигации, установите предварительно запрограммированные станции и установите правильное время на часах.
Оплата через PayPal
После выбора оплаты через PayPal запустится платежная система PayPal, где требуется выбрать способ оплаты банковская карта или аккаунт PayPal.
Если у Вас уже есть аккаунт PayPal, то Вам необходимо зайти в него и осуществить платеж.
Если у Вас нет аккаунта в PayPal, и Вы хотите оплатить с помощью банковской карты через PayPal, Вам необходимо нажать на кнопку «Create an Account (Создать аккаунт)» — на рисунке показано стрелочкой.
После чего PayPal предложит вам выбрать Вашу страну и указать данные кредитной карты.
После указания данных, необходимых для осуществления платежа, надо нажать на кнопку «Pay Now (Оплатить)».
Электронный блок SRS, датчики лобового и бокового ударов
- Не подвергайте воздействию ударной нагрузки места установки и сами элементы системы SRS: электронный блок SRS, датчики лобового и бокового ударов при положении ключа замка зажигания в положении ON (II). При необходимости таких воздействий надо подождать не менее 3 минут после поворота ключа замка зажигания в положение OFF (выключено).
- Во время работ в непосредственной близости от мест расположения электронного блока SRS, датчиков лобового и бокового ударов нельзя использовать инструмент ударного действия: ключи, молотки и т.п. Это может вызвать срабатывание подушек безопасности и стать причиной травмы и материальных потерь.
После происшествия, когда сработали подушки безопасности и пиротехнические преднатяжители ремней безопасности, замените электронный блок SRS, датчики бокового удара и прочие задействованные элементы.После происшествия, когда сработали боковые подушки безопасности, следует заменить датчик бокового удара со стороны срабатывания и электронный блок SRS. После происшествия, когда сработали боковые подушки безопасности, следует заменить датчик бокового удара со стороны срабатывания и электронный блок SRS. После происшествия, когда передние и боковые подушки безопасности по каким-то причинам не сработали, следует внимательно осмотреть электронный блок SRS, датчики лобового и бокового ударов. При обнаружении каких-либо повреждений следует заменить электронный блок SRS и/или соответствующие датчики ударов.
- Электронный блок SRS, датчики лобового и бокового ударов не подлежат ремонту.
- Поверните ключ замка зажигания в положение OFF (выключено), отсоедините отрицательный провод от аккумулятора и подождите, как минимум, 3 минуты перед заменой или установкой электронного блока SRS или отсоединением разъемов от блока SRS.
- Затягивайте болты крепления электронного блока SRS, датчиков лобового и боковых ударов до момента 9,8 Н м (1,0 кг м).
- Не проливайте воду и масло на электронный блок SRS и датчики бокового удара. Храните их в защищенном от попадания пыли месте.
- Электронный блок SRS, датчики лобового и бокового ударов храните в прохладном (температура менее 40 °C) и сухом (относительная влажность менее 80 %) месте.
Правила безопасности при работе с деталями рулевого управления
Расположение соединительных проводов
- Неправильная установка соединительных проводов может привести к разрыву цепи системы SRS и цепи управления звуковым сигналом.
- Установка рулевого колеса.
- Установка поворотного контактора.
- Установка рулевой колонки.
- Прочие работы, связанные со снятием-установкой или регулировкой деталей, расположенных в рулевой колонке.
- Не разбирайте поворотный контактор.
- Не смазывайте поворотный контактор пластичной смазкой.
- При любых повреждениях поворотного контактора его следует заменить на новый. Например, если контактор не вращается свободно, замените его.
Когда срабатывают подушки безопасности?
Чтобы водительская или пассажирская подушка сработала, должны быть соблюдены следующие минимальные требования:
- Автомобиль должен ехать со скоростью более 25 км / ч.
- Угол удара находится примерно в тридцати градусах по обе стороны от центральной линии автомобиля (всего около 60 градусов).
- Сила замедления, по меньшей мере, равна той, которая возникает при столкновении автомобиля с неподвижным барьером со скоростью около 25 км / ч.
Примечание: Передние подушки безопасности не будут разворачиваться в случае столкновения со стороны, сзади или при опрокидывании, поскольку они не обеспечивают дополнительной защиты.
Электронный блок SRS, датчики лобового и бокового ударов
- Не подвергайте воздействию ударной нагрузки места установки и сами элементы системы SRS: электронный блок SRS, датчики лобового и бокового ударов при положении ключа замка зажигания в положении ON (II). При необходимости таких воздействий надо подождать не менее 3 минут после поворота ключа замка зажигания в положение OFF (выключено).
- Во время работ в непосредственной близости от мест расположения электронного блока SRS, датчиков лобового и бокового ударов нельзя использовать инструмент ударного действия: ключи, молотки и т.п. Это может вызвать срабатывание подушек безопасности и стать причиной травмы и материальных потерь.
После происшествия, когда сработали подушки безопасности и пиротехнические преднатяжители ремней безопасности, замените электронный блок SRS, датчики бокового удара и прочие задействованные элементы. Также проверьте активные подголовники передних сидений.После аварии, когда сработали боковые подушки безопасности, следует заменить датчик бокового удара со стороны срабатывания и блок SRS. После происшествия, когда сработали боковые подушки безопасности, следует заменить датчик бокового удара со стороны срабатывания и электронный блок SRS. После происшествия, когда передние и боковые подушки безопасности по каким-то причинам не сработали, следует внимательно осмотреть электронный блок SRS, датчики лобового и бокового ударов. При обнаружении каких-либо повреждений следует заменить электронный блок SRS и/или соответствующие датчики ударов.
- Электронный блок SRS, датчики лобового и бокового ударов не подлежат ремонту.
- Поверните ключ замка зажигания в положение OFF (выключено), отсоедините провод «массы» от аккумулятора и подождите, как минимум, 3 минуты перед заменой или установкой электронного блока SRS или отсоединением разъемов от блока SRS.
- Убедитесь, что блок SRS и датчики переднего и бокового удара надежно закреплены болтами, закрученными до момента 9,8 Н·м (1,0 кгс·м).
- Не проливайте воду и масло на электронный блок SRS и датчики бокового удара. Храните их в защищенном от попадания пыли месте.
- Храните электронный блок SRS, датчики лобового и бокового ударов в прохладном (температура менее 40°C) и сухом (относительная влажность менее 80 %) месте.
Расположение и особенности работы датчиков подушки безопасности
Система SRS — это не только сами ПБ Airbag, но и целая система безопасности. В нее входят контроллеры, управляющее устройство, а также различные исполнительные элементы, начиная от пиропатронов подушек безопасности и заканчивая реле отключения топливного насоса. Для начала предлагаем узнать, где стоят датчики системы SRS и какие функции они выполняют.
Место расположения основных элементов системы безопасности
Датчик удара
Предназначение датчика удара системы SRS заключается в определении столкновения и передачи импульса об этом на управляющее устройство. Что касается конструкции датчика удара Airbag, от она может быть разной, здесь все зависит от модели авто. К примеру, если это электромеханический контроллер, то он будет замыкать свои контакты при определенной ситуации. При замыкании контактов через них начинает проходить ток, в результате чего это приведет к срабатыванию исполнительного механизма, что в итоге будет способствовать наполнению ПБ специальным газом.
При этом нужно помнить, что для того, чтобы процесс был запущен и Airbag надулись, слабого удара будет недостаточно. Если в момент дорожно-транспортного происшествия произойдет нарушение в цепи питания аккумулятора, то ПБ все равно надуется. Это обусловлено тем, что в системе имеется специальное конденсаторное устройство, которое накапливает в себе заряд.
Где находится контроллер? Девайс расположен в самом управляющем устройстве Airbag либо внутри салона, в зависимости от авто. Также такие датчики иногда находятся в моторном отсеке (автор видео — канал Учимся водить машину. Все секреты начинающим).
В основном на иномарках на отключение бензонасоса стоит отдельный датчик удара, бывает при незначительном ударе подушки не сработали, а машину не заведешь, пока не активируешь этот датчик.
Датчик наличия пассажиров
Скорость, с которой ПБ полностью надуется, зависит от массы пассажира, сидящего в кресле. Причем регулирование скорости при столкновении авто необходимо для своевременного создания газовой прослойки между человеком и центральной консолью, если это столкновение лобовое. Если же оно боковое — то между дверью и стеклом. То есть система SRS, основываясь на массе пассажира, определяет силу удара, при этом учитывая упругость самих ПБ. Датчики наличия пассажиров всегда располагаются непосредственно под сиденьем.
Следует отметить, что такие устройства могут иногда быть причиной проблем, в частности, речь идет о снижении чувствительности контроллера. Если в пассажирском кресле будет сидеть ребенок, то из-за потери чувствительности устройство просто его не определит, в результате чего при столкновении ПБ может не раскрыться. Но может быть и обратная сторона этого вопроса. К примеру, если датчик не может определить вес ребенка, то в зависимости от авто, он может слишком быстро надувать ПБ, что опять же, приведет к травмированию малыша.
Как обмануть систему безопасности авто?
Предположим, что подушка руля на автомобиле сработала, и владелец авто не желает затрачиваться на восстановление системы пассивной безопасности.
Как срабатывает система пассивной безопасности смотрите здесь https://autotopik.ru/obuchenie/503-kak-rabotaet-podushka-bezopasnosti.html.
Рассмотрим, что ему делать, чтобы обмануть свой автомобиль и лампа погасла.
Первое, что нужно сделать – это приобрести муляж на руль. После выстрела подушки рулевая крышка тоже отлетит. Чтобы восстановить презентабельный вид салона, следует купить муляж крышки, который будет прикрывать место расположения подушки.
С внешним видом разобрались, салон смотрится, как будто все в порядке. Теперь перейдем непосредственно к тому, как убрать свечение лампы на приборной доске.
Здесь можно поступить несколькими способами. Разберем их на примерах автомобилей.
Первый метод.
Первый способ рассмотрим на примере автомобиля BMW E-39, знаменитой 5-й серии. Чтобы погасить сигнальную лампу системы безопасности можно использовать реле времени.
Данное реле просто через определенный промежуток времени обесточит лампу. Все достаточно просто – после включения зажигания лампа загорится, но потухнет через 5-7 секунд.
То есть, будет полная эмуляция штатной работы системы пассивной безопасности, но при этом она работать не будет, и при подключении сканера на его дисплей выведутся ошибки, указывающие на сбой в системе.
Само реле стоит недорого и подключить его не составит труда даже при незначительных знаниях в автоэлектрике.
Всего лишь нужно подключить реле к замку зажигания БМВ, чтобы запитать его, а также к сигнальной лампе или светодиоду.
Второй метод.
Второй способ еще более дешевый, но при его использовании сканер ошибки распознавать не будет. Рассмотрим мы данный способ на примере Reno Megane 2.
Предположим, что на данном авто сработала подушка, после чего на приборной панели горит сигнальная лампа. Чтобы устранить данную проблему понадобиться всего лишь резистор с определенным сопротивлением.
Суть такова – исправный пиропатрон подушки имеет сопротивление, по которому блок управления определяет, исправен ли он. После срабатывания сопротивления от него нет, и блок выдает ошибку и включает лампу.
Чтобы обмануть систему достаточно всего лишь создать сопротивление, для этого и нужен резистор.
Стоит отметить, что на Reno Megane 2 разных годов выпуска сопротивление пиропатрона может отличаться. На некоторых авто оно составляет 2,4 Ома, на других – 2,7 Ом.
Чтобы точно определить данное значение, можно подключить сканер, и узнать сопротивление другой подушки безопасности – не сработавшей в результате удара. Или это можно сделать заблаговременно на своем авто.
Затем просто подбирается резистор и подключается в проводку, ведущую к сработанному пиропатрону.
После этого остается лишь сканером почистить память блока управления, чтобы он резистор воспринял как новый пиропатрон.
Что такое подушки безопасности?
Подушки безопасности (Airbag) — это эластичные ткани или другие материалы, которые плотно упакованы в разных местах вашего автомобиля. В большинстве автомобилей есть подушки безопасности на передней приборной панели, а у многих автомобилей и вдоль боковой части автомобиля. Эти мешки сжимаются и хранятся в небольшой области. Когда происходит авария, они обеспечивают систему амортизации для людей в машине, которая поможет не вылететь наружу в случае аварии. Хотя это не всегда спасёт вас от серьезных травм или смерти, во многих случаях амортизация пассажиров может оказаться весьма целесообразной.
Первая конструкция Airbag была запатентована в 1951 году, но автомобильная промышленность очень медленно применяла эту технологию аж до 70-х.
Проблемы при оплате банковскими картами
Иногда при оплате банковскими картами Visa / MasterCard могут возникать трудности. Самые распространенные из них:
- На карте стоит ограничение на оплату покупок в интернет
- Пластиковая карта не предназначена для совершения платежей в интернет.
- Пластиковая карта не активирована для совершения платежей в интернет.
- Недостаточно средств на пластиковой карте.
Для того что бы решить эти проблемы необходимо позвонить или написать в техническую поддержку банка в котором Вы обслуживаетесь. Специалисты банка помогут их решить и совершить оплату.
Вот, в принципе, и все. Весь процесс оплаты книги в формате PDF по ремонту автомобиля на нашем сайте занимает 1-2 минуты.
Если у Вас остались какие-либо вопросы, вы можете их задать, воспользовавшись формой обратной связи, или написать нам письмо на info@krutilvertel.com.





















































